Not all roles available for this page.
Sign in to view assessments and invite other educators
Sign in using your existing Kendall Hunt account. If you don’t have one, create an educator account.
Find the value of each expression mentally.
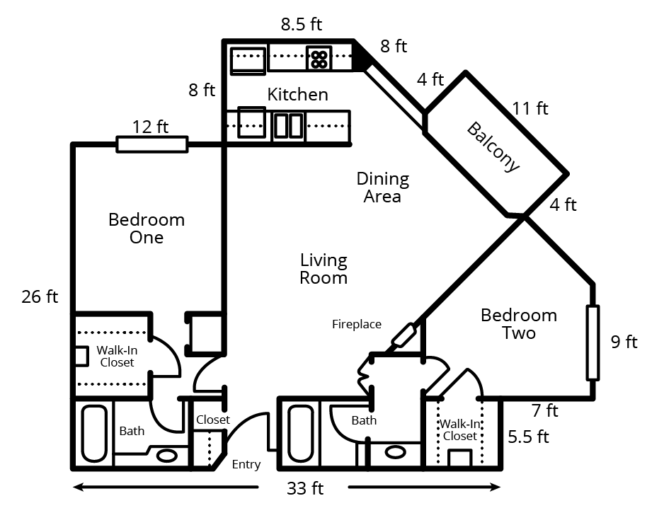
Here is a floor plan of a house. Approximate lengths of the walls are given. What is the approximate area of the home, including the balcony? Explain or show your reasoning.
Estimate the area of Nevada in square miles. Explain or show your reasoning.
We can find the area of some complex polygons by surrounding them with a simple polygon like a rectangle. For example, this octagon is contained in a rectangle.
The rectangle is 20 units long and 16 units wide, so its area is 320 square units. To get the area of the octagon, we need to subtract the areas of the four right triangles in the corners. These triangles are each 8 units long and 5 units wide, so they each have an area of 20 square units. The area of the octagon is
We can estimate the area of irregular shapes by approximating them with a polygon and finding the area of the polygon. For example, here is a satellite picture of Lake Tahoe with some one-dimensional measurements around the lake.
The area of the rectangle is 160 square miles, and the area of the triangle is 17.5 square miles for a total of 177.5 square miles. We recognize that this is an approximation, and not likely the exact area of the lake.
Help us improve by sharing suggestions or reporting issues.